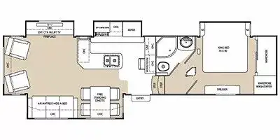
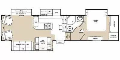
165 cubic feet drop frame pass through storage area with diamond plate no mess floor
19” HD LCD TV in pass through storage area Extra large Entry handle
30” Wide entry door with full view window and lighted threshold
Solar reflective mirror finish windows
Under mount spare tire and carrier
Power Front Jacks
Power Awning
Power Rear Jacks
Goodyear Tires
7,000 lbs axles with 8 lug hubs
Trail Air Equa Flex suspension
Patio Scare lights
50 AMP service and detachable power cord
Individual slide switches
Exclusive one piece docking station
Black Tank Flush
Outside speakers
Rear accessory hitch
Snap Jack Pins
Laminated floor construction
Ducted forced air heated holding tanks, water lines, and dump valves along with enclosed and insulated underbelly
Extra large, insulated, radius baggage doors
Attic vents
40,000 BTU furnace with automatic
15,000 BUT air condition with quick cool
16 gal. effective DSI gas/electric water heater
Engineered frame and front cap create Turn Tec technology
Aluminum framed vacuum bonded sidewalls
Whole coach water filtration system
12V Battery disconnect
Roof Ladder
Rear gel coated fiberglass cap
Interior & Decor
42” HD LCD TV
FM/CD/DVD player with 5.1 surround sound
Digital TV antenna with booster
Magic Night sleep system air mattress hide-a-bed sofa
(2) Swivel, rocker recliners
Solid Hickory Hardwood Cabinet stiles (frames)
Solid Hickory raised panel cabinet doors
Solid hardwood slide out fascias
Solid hardwood dresser tops
Full extension ball bearing drawer guides
Residential Carpeting with padding
Beaufloor flooring throughout kitchen and bathroom
6’7” tall Living area slide outs with oversized overhead cabinets
Day/night shades (living area)
Oil Rubbed bronze hardware
End table with storage and magazine rack
Corian topped laptop station
Ceiling fan with tulip lighting
Systems monitor panel
Satellite Prep
Carbon Monoxide detector
Central Vacuum
Galley
DuPont Corian counter tops and sink covers
Residential sized Stone cast sink with pull out spray faucet
22” Oven with high output range and automatic igniter
Solid Hickory hardwood refrigerator inserts
Extra Large 8 cubic foot double door refrigerator
30” convection microwave oven
Extra large full extension drawers
Free standing dinette with flip up storage and four elegant chairs with padded seats and backs
“Comfort Air” Power Fan with Remote
Hard wood wine rack with goblet holder
Pantry with five full extension drawer boxes and hardwood fronts (N/A 346)
Second pull out pantry with solid maple butcher block and storage
Sleeping
Residential bedding with pillow shams and cylinder accent pillow
Extra large dresser with residential size drawers
19” HD LCD TV
Residential 60” x 80” deluxe pillow top queen bed
Night stand with storage underneath and bed shelf with queen bed (two bed shelves with king bed)
His and Her shaded reading lights in bed slide
Wire and frame for 2nd AC
Extra deep front wardrobe with dual hanging rods and cedar lining
Armoire with Washer/Dryer prep for stackable
Washer/Dryer
Bath and Water
One piece fiberglass shower with glass surround and adjustable shower head
DuPont Corian lavatory top with residential sink
Residential 40” vanity height with mirrored medicine cabinet
Porcelain toilet with foot flush pedal
Heat and air conditioning ducts in every bathroom for comfort
Mandatory Packages
Coachmen Convenience Package (STANDARD)
Door side and off door side security scare lights
Solar reflective windows
Extra Large Double Door Refrigerator with Raised
Hardwood insert
Range Cover
Exterior folding grab handle
Interior grab handle
Glass shower door
Day/Night Shades (Main living area)
Wire and Frame for second AC
72” sofa with magic night sleep system air mattress
Hardwood cabinet stiles and cabinet doors
Smoked glass cabinet doors
Shower skylight
Free standing dinette
Outside shower
Black tank flush
Ceiling fan
Central vacuum system
Cedar lined closet
Whole coach water filter
High glass gel coated exterior fiberglass
Luxury Package
Power front jacks
Power rear jacks
Power awning
Digital tv antenna with booster
DVD/CD with 5.1 surround sound
Beaufloor flooring
30” Entry door with lighted threshold
30” Convection microwave oven
15,000 BTU AC
Cable and Satellite ready
Comfort air fan in kitchen
Phone jack
Equa flex suspension
Under mount spare tire kit
42” HD LCD TV in living area
19” HD LCD TV in bedroom
19” HD LCD TV in pass thru storage
12 volt battery disconnect
Shock prep
Aluminum wheels
Roof Ladder
Fiberglass rear cap
Options
High back desk chair
Booth dinette IPO of free standing dinette
Dual Pane Tinted Safety Glass Radius Windows
Stabilizer Support Arms - JT Strong Arm
Trail Air Roto Flex Pin Box
Slide out awnings
King Bed
Road side assistance
CSA Upfit
Wireless Rear Back Up Camera
2nd 13,500 BTU Roof Air
2nd comfort air fan
Generator ready (ONAN 5.5kw)
ONAN Marquis Gold 5.5 LP gen..
12 cu. ft. 4-door Gas/Elec. Refrigerator
Electric fireplace
See us for a complete list of features and available options!
All standard features and specifications are subject to change.
Favorite RVs
Save your favorite RVs as you browse. Begin with this one!
What Other Customers Are Saying
Excellent Customer Service
We had a walk through on our new Newmar with David and Lucas (Meridian store). They explained everything on the RV and even shared their glasses to watch the eclipse. They were extremely patient while we asked several questions. They even help d us at the end to order the additional products we wanted.
Bonita
Excellent Customer Service
Wanted to let you know that Kahn and Josh (Idaho Falls store) gave us excellent service on Labor Day 2017. We called with a minor electrical problem. They were able to fit us in and send us on our way with no problem and were very professional and knowledgeable. Thanks for your service.
Mick
Excellent Customer Service
On a recent trip, we had a problem with one of our roof vents. It seems that the vent material had deteriorated to the point that it had failed around the perimeter. The vent would open even though the frame was tightly closed. We have very little experience with RVs as this is our first. We did a quick
Payments are with approved credit. Terms may vary. Monthly payments are only estimates derived from the RV price with an 84, 96, 180, 204, or 240 month term, 10% to 20% down, 7.99%-11.74% interest APR, and financing terms are based on approved credit for qualified buyers and does not constitute a commitment that financing for a specific rate or term is available. Tax, title, licensing, surcharges, doc fees, titling, registration, or other processing fees may apply and are not included in the prices shown or within the monthly payments and must be paid by the purchaser depending on State laws/rules. While great effort is made to ensure the accuracy of the information on this site, errors do occur so please verify all information, pricing, and payments with a Bish's RV team member by calling us or by visiting us at the dealership.
RV Park and Sell Event sponsored by Bish's RV strives to ensure all pricing, images and information contained on this website is accurate. Despite our efforts, occasionally errors resulting from typos, inaccurate detailed information or technical mistakes may occur. We are not responsible for any such errors and reserve the right to correct them at any time. Stock photos may not represent the actual unit in stock. See dealer for details.